Page suivante
Page précédente
Reims (51100)

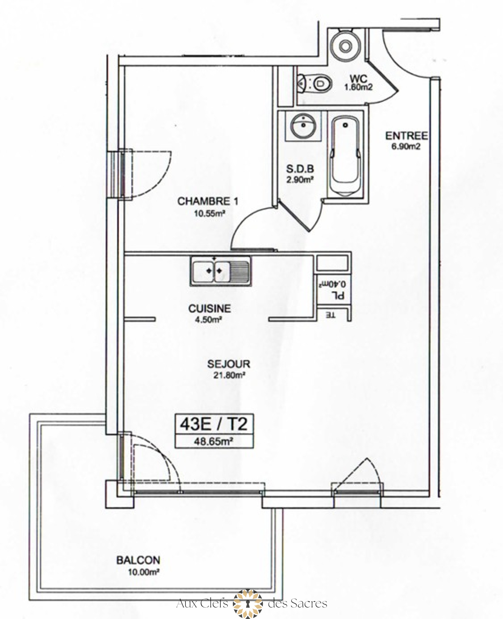
Appartement 2 pièce(s) 1 chambre(s) 48.65 m²

1
Balcon
Ascenseur
180 000 €
Réf 162

Découvrez cet agréable appartement de type 2 situé dans une résidence récente de 2009, à proximité immédiate de la Gare de Reims, dans le quartier dynamique de Clairmarais.

Ce bien de 48,65 m² en parfait état se compose d'une entrée avec placard, une cuisine fonctionnelle, une pièce de vie lumineuse, une chambre confortable, une salle de bains et des WC séparés. Vous apprécierez également son grand balcon de 10 m² idéal pour se détendre et sa place de stationnement sécurisée en sous-sol. Cet appartement est vendu loué avec un loyer de 691,58 € CC par mois, parfait pour un investissement locatif.

Résidence sécurisée, environnement prisé, proximité des commerces, transports et services : un bien à ne pas manquer ! Contactez-nous pour en savoir plus ou organiser une visite.

Bilan énergétique

Diagnostics énergetiques
Consommation énergétique
A B C D E F G
Emission de gaz à effet de serre
A B C D E F G

Montant estimé des dépenses annuelles d'énergie pour un usage standard est compris entre 846 € et 1 144 € . Prix moyens des énergies indexés sur les années 2021, 2022 et 2023 (abonnements compris).

A propos de ce bien Caractéristiques de ce bien
  • Surface 48,65 m²
  • séjour 21 m²
  • 1 chambre(s)
  • 1 salle(s) de bain
  • construit en 2009
  • Chauffage individuel : radiateur (electrique)
  • 3ème étage
  • ascenseur
  • vue Sud/ouest
  • balcon
  • interphone

Composition

Composition de ce bien

Etage 3

  • entrée 6.90 m²
  • Placard 0.40 m²
  • salle de bain 2.90 m²
  • WC 1.60 m²
  • balcon 10.00 m²
  • cuisine 4.50 m²
  • salon/sejour 21.80 m²
  • chambre 10.55 m²

Info copro

Copropriété
  • Copropriété Oui
  • Lot n° 1157
  • Plan de sauvegarde Non

Financier

Informations financières
Prix de vente 180 000 € Les honoraires d'agence seront intégralement à la charge du vendeur
Taxe foncière annuelle 957 €

Autour du bien

Découvrez le quartier

Simulation

Calcul des mensualités
* Champs obligatoires